
完成お披露目会
【1階完結型 自由設計】お客様の家 完成おひろめ会 《掛川市家代の里》
日程・開催日時
2025.12.25 (木) - 2026.02.01 (日)
*お客様のご厚意で特別に長期開催! *事前予約制 *前日・当日は下記の水色ボタン「電話する」からお問い合わせください
場所
掛川市家代の里
※詳細は予約時にご案内いたします。
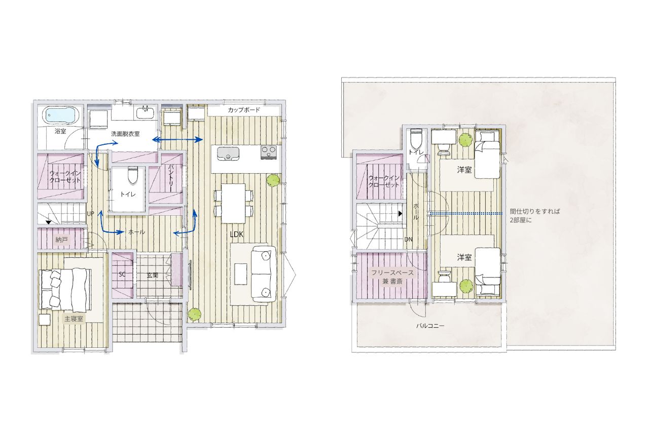
1階で暮らしが完結する平屋のような住まい。
自由設計の注文住宅で実現、回遊導線で毎日の家事ラクが叶うプラン。
洗練されたシンプルモダンな外観が、上質な暮らしを演出します。
-
LDK
折り下げ天井や3ヶ所のR垂れ壁など、細部にまでこだわった内装が、空間に柔らかさと上質さをプラスしています。
-
キッチン
憧れのフルフラットキッチン(フィオレストーン天板)と、大容量のフロントオープン食洗機を採用。見た目の美しさと後片付けのしやすさを両立しました。
-
パントリー
コストコなどの買いだめに対応したセカンド冷凍庫スペースと、大容量パントリーを確保。キッチン周りが常にスッキリ片付きます。
-
洗面浴室
ランドリールームを兼ねた広々洗面脱衣室を設置したため、「洗う・干す・畳む・しまう」が最短距離で完結します。さらに、すぐそばにWICがあります。
-
1階WIC(イメージ)
1階に十分な収納(WIC)を確保することで、身支度のたびに2階へ行く必要がありません。将来的に足腰が不安になった際も、1階だけで快適に生活できる「バリアフリー」な設計です。
-
2階洋室(イメージ)
将来的に子ども部屋を2つに分けたり、趣味の部屋を独立させたりと、家族の成長や変化に合わせて空間を自由にレイアウト。長く住み続けられる工夫が詰まっています。
◎お好きな日程でスムーズにご案内するために、『完全予約制』とさせていただいております。 ◎下記「イベント参加のご予約」フォームよりご予約いただき、当日は気をつけてお越しください。 ◎ご見学希望の前日・当日はお電話でのご予約をお願いいたします。
